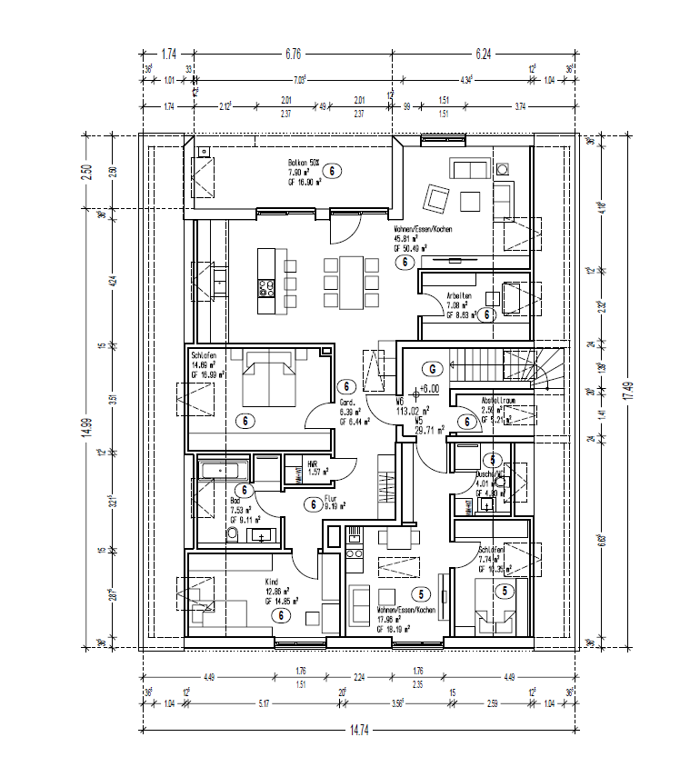
3-Zimmer Neubauwohnung
Provisionsfrei / 63834 Sulzbach a. Main
Wohnfläche
87 m²
Zimmer
3
Etage
Obergeschoss
Kaufpreis
391.500€
Objektbeschreibung
In zentraler und ruhiger Lage wird hier ein Mehrfamilienhaus mit insgesamt 5 Wohneinheiten verwirklicht. Alle Zimmer verfügen über ein Tageslichtbad. Die Balkone/Terrassen haben eine Süd-Westausrichtung mit unverbautem Blick. Die Stellplätze befinden sich unmittelbar auf dem Grundstück. Die Hauswirtschaftsräume befinden sich in den einzelnen Wohnungen. Es entstehen 3-4 Zimmer Wohnungen mit tollen Schnitten.
Ausstattung
- Fußbodenheizung mit Einzelraumregelung
- Energieeffiziente Wärmepumpenheizung
- Fenster mit elektrischen Rollläden
- Tageslichtbäder
- Balkon / Terrasse
Energieinformationen

Objektlage
Das Objekt befindet sich in Sulzbach a. Main. Die ruhige Lage trotz schneller Anbindung an die Stadt Aschaffenburg und weitere Knotenpunkte wie Autobahn machen die Ortschaft auch für Pendler beliebt. In Laufnähe des Objektes ist der ÖPNV schnell erreichbar. Auch verfügt Sulzbach über einen Bahnhof der Westfrankenbahn, welcher ebenfalls in wenigen Gehminuten erreichbar ist.
In Sulzbach sind mehrere Restaurants, Bäckereien, Metzgereien und ein Arzt ansässig. Zudem befinden sich drei größere Einkaufsmärkte und zwei Tankstellen in unmittelbarer Nähe.
Der Main und die Mainwiesen laden zum Spazieren und entspannen ein.



